

| タイプ |
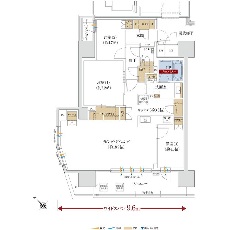
Aタイプ |
間取り |
3LDK+ウォークインクロゼット+シューズクローク+パントリー+納戸 |
|---|---|---|---|
| 専有面積 |
90.04 ㎡ |
バルコニー面積 |
13.48 ㎡ |
| 所在地 |
静岡県静岡市葵区鷹匠3丁目1-2(地番) |
||
| 交通 |
東海道新幹線「静岡」駅 徒歩13分 |
||
| 備考 |
サービスバルコニー面積:2.31㎡ |
||