
タイプ |
F TYPE |
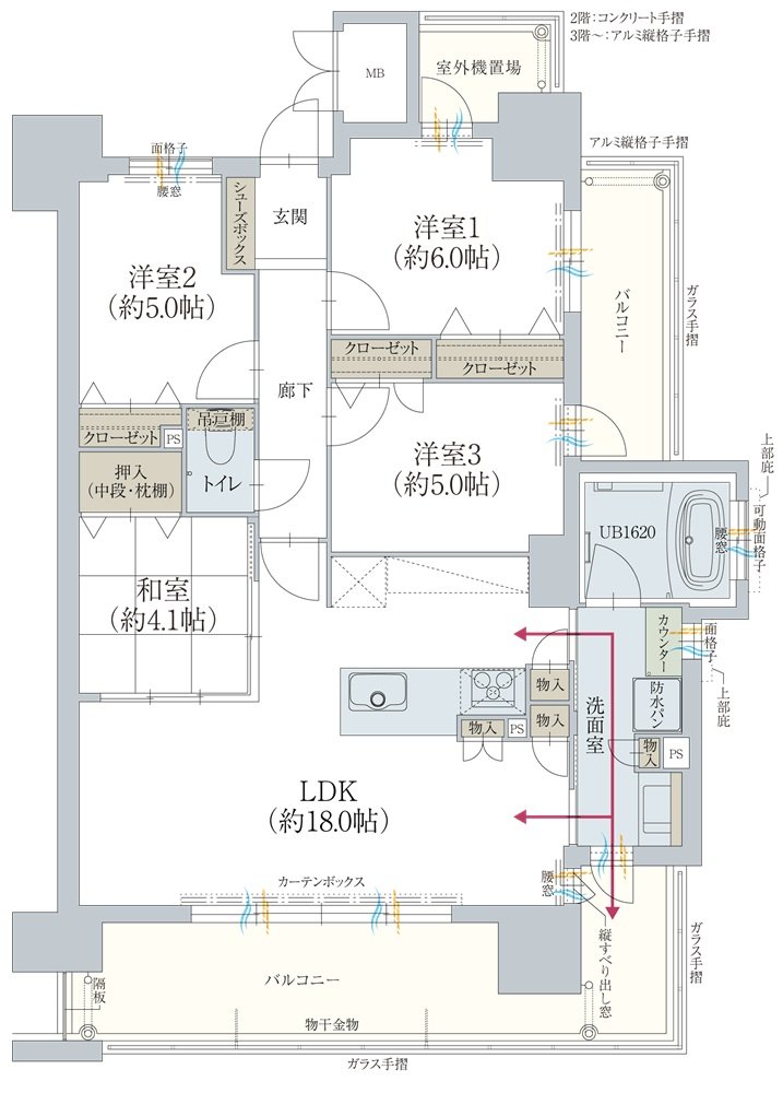
間取り |
4LDK |
---|---|---|---|
専有面積 |
85.15 ㎡ |
バルコニー面積 |
22.34 ㎡ |
所在地 |
山口県岩国市麻里布町2丁目73番1(地番) |
||
交通 |
JR山陽本線「岩国」駅 徒歩6分(約480m) |
||
備考 |
室外機置場面積:3.00㎡ |