

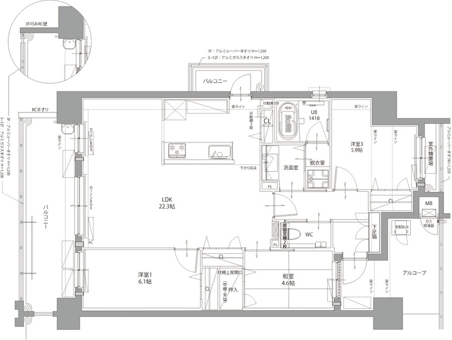
| タイプ |
Aα TYPE |
間取り |
3LDK |
|---|---|---|---|
| 専有面積 |
84.84 ㎡ |
バルコニー面積 |
16.68 ㎡ |
| 所在地 |
福岡県北九州市小倉北区木町3丁目71-7(地名地番) |
||
| 交通 |
JR日豊本線「南小倉」駅 徒歩1分 |
||
| 備考 |
アルコーブ面積:10.10㎡ |
||