アットホーム 新築マンション

印刷する

このウィンドウを閉じる

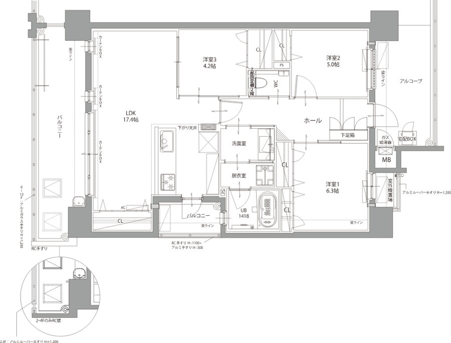
リヴィエール南小倉駅前パークシティ D TYPE

リヴィエール南小倉駅前パークシティ 間取り D TYPE
タイプ

D TYPE

間取り

3LDK

専有面積

78.13 ㎡

バルコニー面積

18.90 ㎡

所在地

福岡県北九州市小倉北区木町3丁目71-7(地名地番)

交通

JR日豊本線「南小倉」駅 徒歩1分
JR日田彦山線「南小倉」駅 徒歩1分
バス停「西鉄南小倉駅前」 停歩4分

備考

アルコーブ面積:10.46㎡
室外機置場面積:1.37㎡

  • アルコーブ
  • 浴室に窓
  • 2面バルコニー
  • スロップシンク

印刷する

このウィンドウを閉じる

アットホーム Copyright(c) At Home Co.,Ltd. このサイトに掲載している情報の無断転載を禁止します。著作権はアットホーム(株)またはその情報提供者に帰属します。