
タイプ |
D1タイプ |
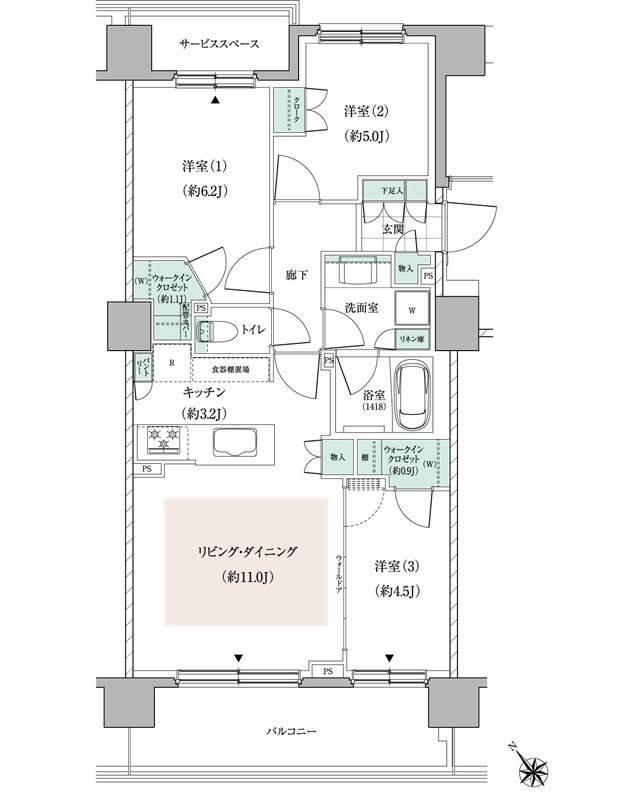
間取り |
3LDK+2WIC |
---|---|---|---|
専有面積 |
68.41 ㎡ |
バルコニー面積 |
10.5 ㎡ |
所在地 |
北海道札幌市白石区東札幌二条1丁目2番(地番) |
||
交通 |
札幌市東西線「東札幌」駅 徒歩5分 |
||
備考 |
トランクルーム面積:0.97㎡ |