

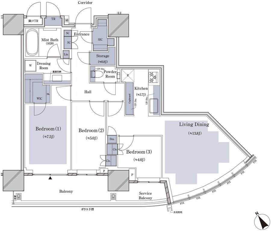
| タイプ |
S80A type |
間取り |
3LDK+WIC+SIC+S+TR |
|---|---|---|---|
| 専有面積 |
80.59 ㎡ |
バルコニー面積 |
9.97 ㎡ |
| 所在地 |
神奈川県横浜市中区海岸通5丁目25番1(地番) |
||
| 交通 |
横浜高速鉄道みなとみらい線「馬車道」駅 徒歩2分(出口2a) |
||
| 備考 |
※専有面積に、トランクルーム面積:0.59㎡を含む |
||