

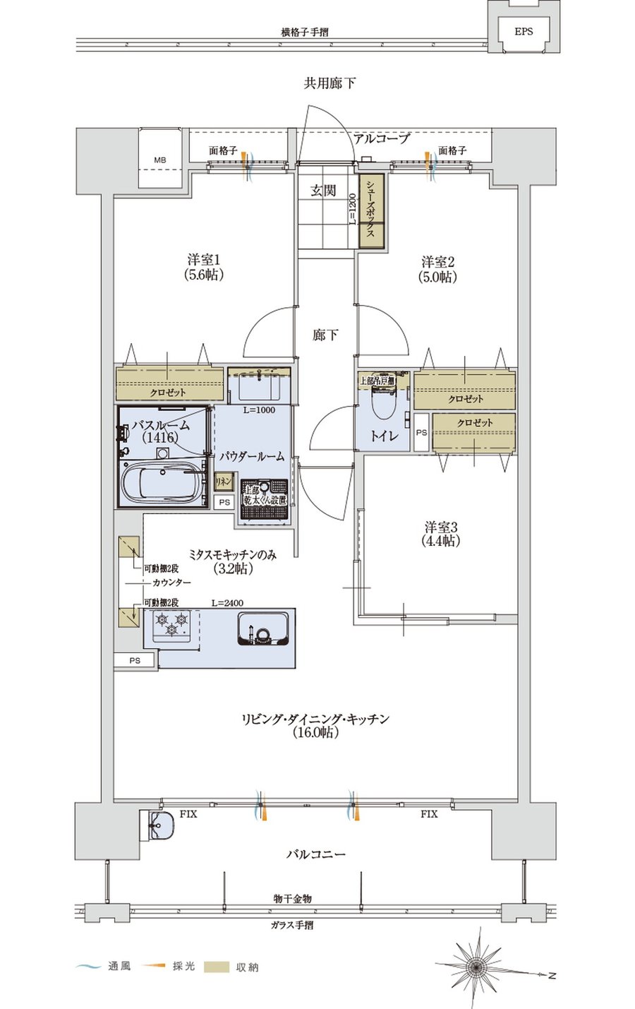
| タイプ |
E type |
間取り |
3LDK+ミタスモキッチン |
|---|---|---|---|
| 専有面積 |
68.51 ㎡ |
バルコニー面積 |
11.39 ㎡ |
| 所在地 |
福岡県筑紫野市上古賀3丁目119-1他4筆 |
||
| 交通 |
JR鹿児島本線「天拝山」駅 徒歩10分 |
||
| 備考 |
アルコーブ面積:2.63 |
||