アットホーム 新築マンション

印刷する

このウィンドウを閉じる

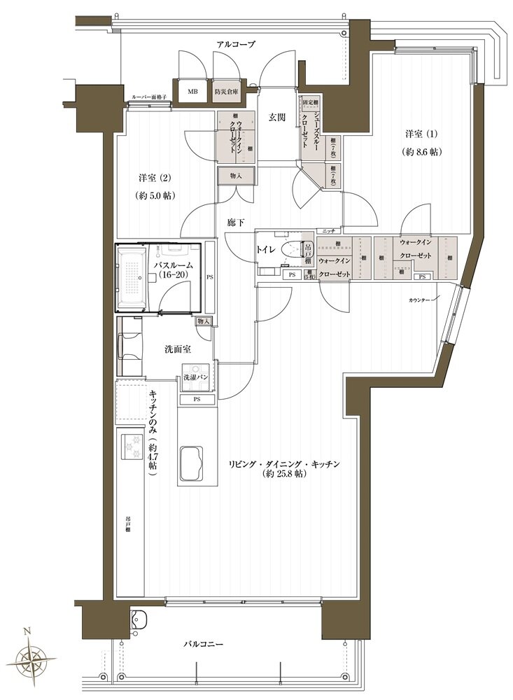
J.CREST番町ミッドハウス F typeメニュープラン1

J.CREST番町ミッドハウス 間取り F typeメニュープラン1
タイプ

F typeメニュープラン1

間取り

2LDK+3WIC+STC

専有面積

92.67 ㎡

バルコニー面積

11.80 ㎡

所在地

香川県高松市番町2丁目13番3(地番)

交通

JR高徳線「昭和町」駅 徒歩12分
JR予讃線「高松」駅 徒歩16分
JR高徳線「高松」駅 徒歩16分

備考

※専有防災倉庫面積0.44㎡含む
アルコーブ面積:9.17㎡

  • アルコーブ
  • 広いリビング
  • ウォークインクローゼット
  • 出入口が2か所以上あるキッチン
  • トランクルーム
  • 南向き

印刷する

このウィンドウを閉じる

アットホーム Copyright(c) At Home Co.,Ltd. このサイトに掲載している情報の無断転載を禁止します。著作権はアットホーム(株)またはその情報提供者に帰属します。