
タイプ |
F typeメニュープラン2 |
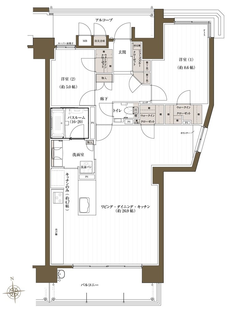
間取り |
2LDK+3WIC+STC |
---|---|---|---|
専有面積 |
92.67 ㎡ |
バルコニー面積 |
11.80 ㎡ |
所在地 |
香川県高松市番町2丁目13番3(地番) |
||
交通 |
JR高徳線「昭和町」駅 徒歩12分 |
||
備考 |
※専有防災倉庫面積0.44㎡含む |