
タイプ |
B type |
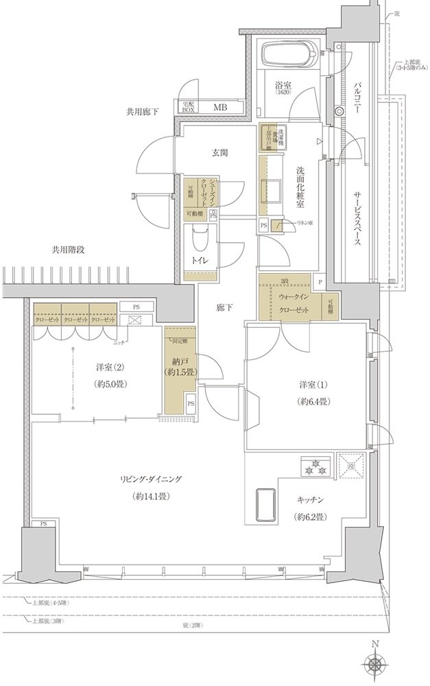
間取り |
2LDK+N+WIC+SIC |
---|---|---|---|
専有面積 |
83.97 ㎡ |
バルコニー面積 |
3.68 ㎡ |
所在地 |
京都府京都市中京区恵比須町424番(地番) |
||
交通 |
地下鉄東西線「京都市役所前」駅 徒歩3分 |
||
備考 |
サービススペース面積:3.39㎡ |