

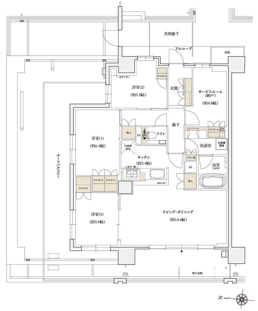
| タイプ |
B2r TYPE |
間取り |
3LDK+S |
|---|---|---|---|
| 専有面積 |
86.98 ㎡ |
バルコニー面積 |
15.30 ㎡ |
| 所在地 |
京都府京都市南区久世上久世町89番1・270番(地番) |
||
| 交通 |
JR東海道本線「桂川」駅 徒歩8分(東出入口) |
||
| 備考 |
ルーフバルコニー面積:20.63㎡ |
||