
タイプ |
A TYPE |
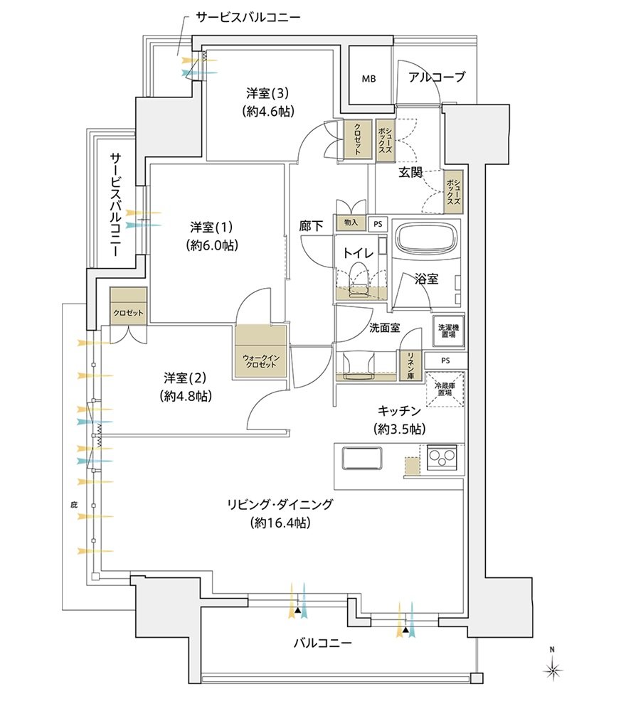
間取り |
3LDK+WIC |
---|---|---|---|
専有面積 |
80.30 ㎡ |
バルコニー面積 |
7.89 ㎡ |
所在地 |
大阪府大阪市中央区中寺2丁目2番2の一部、2番3 |
||
交通 |
地下鉄谷町線「谷町九丁目」駅 徒歩1分 |
||
備考 |
サービスバルコニー面積:4.46㎡ |