
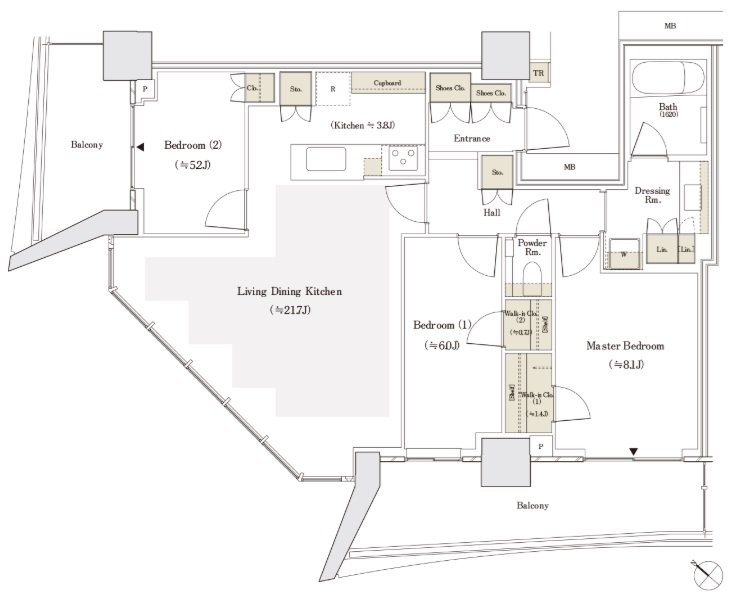
タイプ |
91Bwタイプ |
間取り |
3LDK+2WIC+TR |
---|---|---|---|
専有面積 |
91.96 ㎡ |
バルコニー面積 |
20.67 ㎡ |
所在地 |
東京都中央区月島3丁目3311番地(地番) |
||
交通 |
東京メトロ有楽町線「月島」駅 徒歩4分 |
||
備考 |
※専有面積に専有トランクルーム面積 0.30㎡含む |