

| タイプ |
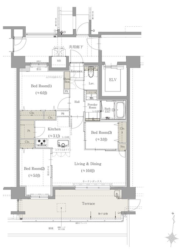
B1タイプ |
間取り |
3LDK |
|---|---|---|---|
| 専有面積 |
63.22 ㎡ |
バルコニー面積 |
- |
| 所在地 |
福岡県福岡市城南区神松寺2丁目112番16号、28号、29号(地番) |
||
| 交通 |
西鉄バス「島廻橋」バス停 (油山観光道路)徒歩3分 (約200m) |
||
| 備考 |
テラス面積:15.45㎡ |
||