
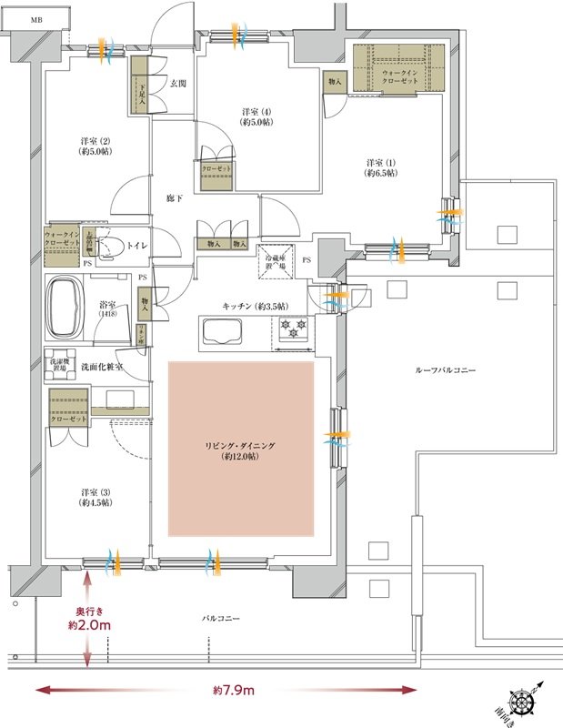
タイプ |
B8rタイプ |
間取り |
4LDK+2WIC |
---|---|---|---|
専有面積 |
80.09 ㎡ |
バルコニー面積 |
15.87 ㎡ |
所在地 |
神奈川県海老名市河原口6丁目1334番1他(地番) |
||
交通 |
小田急小田原線「海老名」駅 徒歩11分 |
||
備考 |
ルーフバルコニー面積:25.41㎡ |