
タイプ |
Hg type |
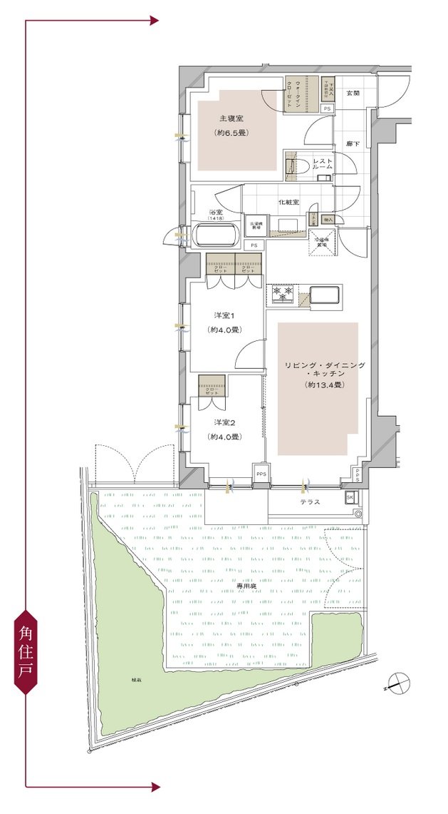
間取り |
3LDK+WIC |
---|---|---|---|
専有面積 |
63.03 ㎡ |
バルコニー面積 |
- |
所在地 |
東京都練馬区石神井台3丁目927番2外(地名地番) |
||
交通 |
西武池袋線「石神井公園」駅 徒歩6分 |
||
備考 |
テラス面積:4.44㎡ |