

| タイプ |
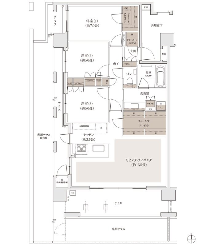
Dgタイプ |
間取り |
3LDK+2WIC+SIC |
|---|---|---|---|
| 専有面積 |
88.53 ㎡ |
バルコニー面積 |
- |
| 所在地 |
福岡県福岡市中央区浄水通48-2(地番) |
||
| 交通 |
地下鉄七隈線「薬院大通」駅 徒歩7分サブエントランスより約530m |
||
| 備考 |
※専有面積にTR(防災備蓄倉庫)面積:0.80㎡を含む |
||