
タイプ |
Eタイプ |
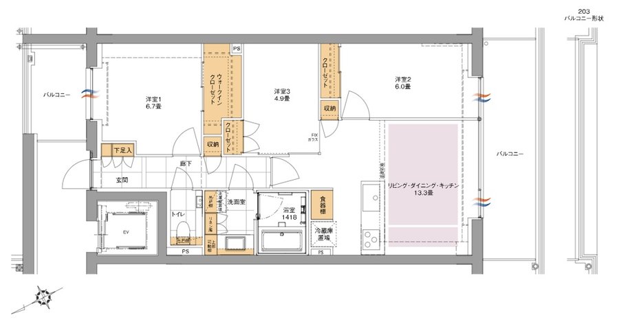
間取り |
3LDK |
---|---|---|---|
専有面積 |
71.91 ㎡ |
バルコニー面積 |
12.7 ㎡ |
所在地 |
神奈川県川崎市宮前区土橋1丁目10番41他2筆(地番) |
||
交通 |
東急田園都市線「宮前平」駅 徒歩7分 |
||
備考 |
※バルコニー面積:10.06㎡ ※203のみ |