
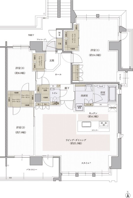
タイプ |
Oタイプ |
間取り |
3LDK |
---|---|---|---|
専有面積 |
120.64 ㎡ |
バルコニー面積 |
9.6 ㎡ |
所在地 |
愛媛県松山市南堀端町6番6他 計5筆(地番) |
||
交通 |
伊予鉄道環状線「南堀端」駅 徒歩1分 |
||
備考 |
(PREMIUM FLOOR) |