
タイプ |
Type007(ザ・コート) |
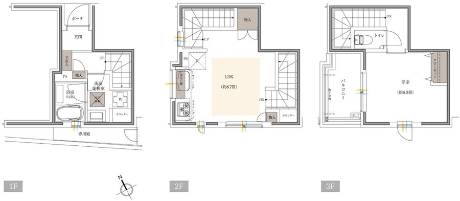
間取り |
1LDK |
---|---|---|---|
専有面積 |
51.22 ㎡ |
バルコニー面積 |
5.00 ㎡ |
所在地 |
東京都大田区山王1丁目2738番5(地番)(ザ・ヒルズ) |
||
交通 |
JR京浜東北線「大森」駅 徒歩8分(ザ・ヒルズ・ザ・コート) |
||
備考 |
ポーチ面積:1.24㎡ |