

| タイプ |
A type |
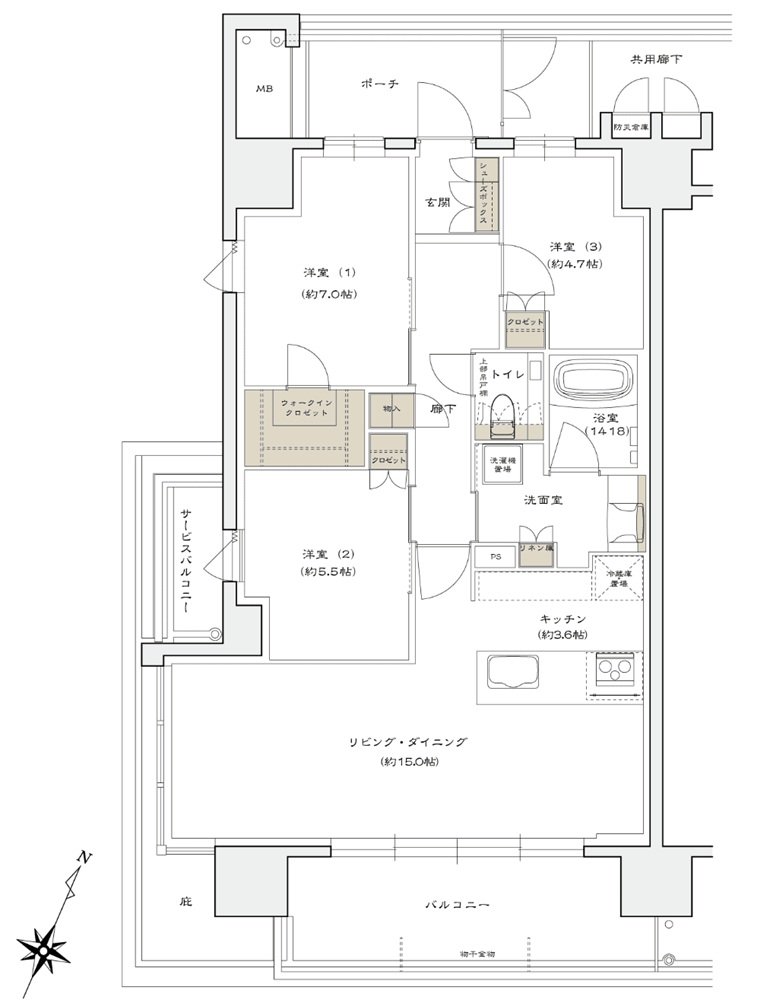
間取り |
3LDK+WIC |
|---|---|---|---|
| 専有面積 |
80.42 ㎡ |
バルコニー面積 |
11.7 ㎡ |
| 所在地 |
大阪府大阪市都島区片町2丁目5-1(地番) |
||
| 交通 |
JR大阪環状線「京橋」駅 徒歩1分 |
||
| 備考 |
サービスバルコニー面積:2.97㎡ |
||