
タイプ |
70B TYPE |
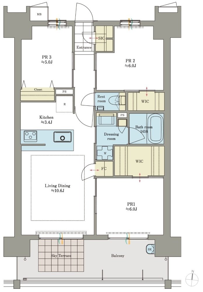
間取り |
3LDK+2WIC+FC+SIC |
---|---|---|---|
専有面積 |
70 ㎡ |
バルコニー面積 |
14 ㎡ |
所在地 |
岡山県倉敷市日ノ出町1丁目552番1 |
||
交通 |
JR山陽本線「倉敷」駅 徒歩8分 |
||
備考 |
※バルコニー面積にスカイテラス面積を含む |