

| タイプ |
74A TYPE |
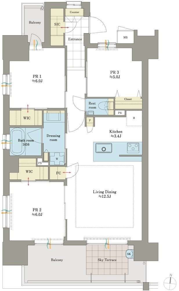
間取り |
3LDK+2WIC+FC+P+SIC |
|---|---|---|---|
| 専有面積 |
74.60 ㎡ |
バルコニー面積 |
14.73 ㎡ |
| 所在地 |
岡山県倉敷市日ノ出町1丁目552番1 |
||
| 交通 |
JR山陽本線「倉敷」駅 徒歩8分 |
||
| 備考 |
※バルコニー面積にスカイテラス面積含む |
||