

| タイプ |
Tr TYPE(第2期1次予告住戸) |
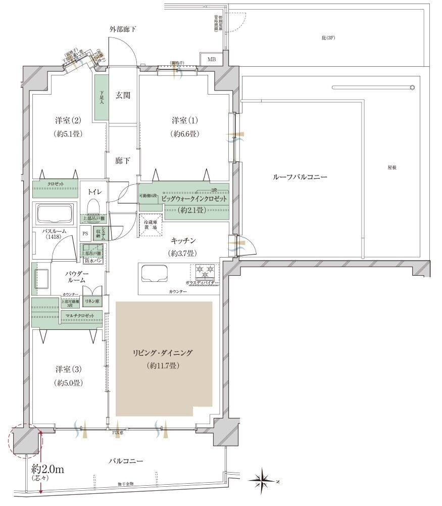
間取り |
3LDK+R+BW |
|---|---|---|---|
| 専有面積 |
72.77 ㎡ |
バルコニー面積 |
11.56 ㎡ |
| 所在地 |
埼玉県さいたま市大宮区櫛引町1丁目867の一部、868の一部、869の一部(地番) |
||
| 交通 |
埼玉新都市交通伊奈線「鉄道博物館(大成)」駅 徒歩13分 |
||
| 備考 |
ルーフバルコニー面積:19.32㎡ |
||