
タイプ |
J1 TYPE【先着順住戸】 |
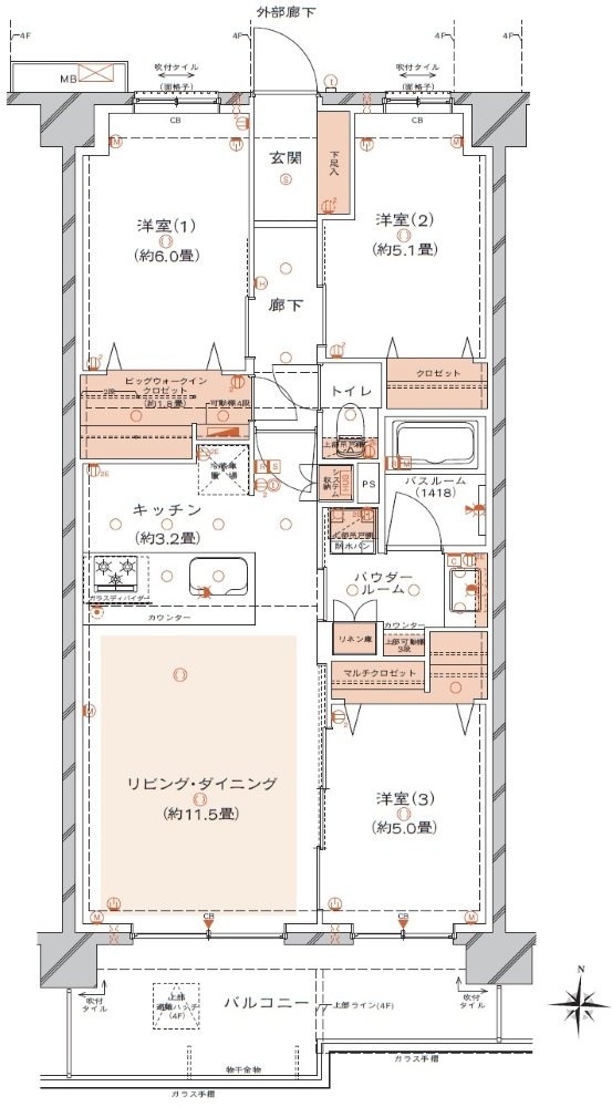
間取り |
3LDK+BW |
---|---|---|---|
専有面積 |
70.20 ㎡ |
バルコニー面積 |
10.77 ㎡ |
所在地 |
埼玉県さいたま市大宮区櫛引町1丁目867の一部、868の一部、869の一部(地番) |
||
交通 |
埼玉新都市交通伊奈線「鉄道博物館(大成)」駅 徒歩13分 |