アットホーム 新築マンション

印刷する

このウィンドウを閉じる

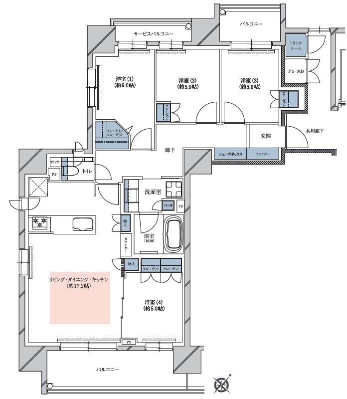
レ・ジェイド札幌手稲 Aタイプ

レ・ジェイド札幌手稲 間取り Aタイプ
タイプ

Aタイプ

間取り

4LDK+WIC+TR

専有面積

92 ㎡

バルコニー面積

14.2 ㎡

所在地

北海道札幌市手稲区手稲本町二条2丁目3番11(地番)

交通

JR函館本線「手稲」駅 徒歩5分

備考

サービスバルコニー面積:3.05㎡

※住居専有面積にトランクルーム面積1.06㎡を含む

  • 玄関からリビングが見えない間取り
  • 可変式間仕切り
  • ウォークインクローゼット
  • トランクルーム
  • 南東向き
  • フラットフロア

印刷する

このウィンドウを閉じる

アットホーム Copyright(c) At Home Co.,Ltd. このサイトに掲載している情報の無断転載を禁止します。著作権はアットホーム(株)またはその情報提供者に帰属します。