

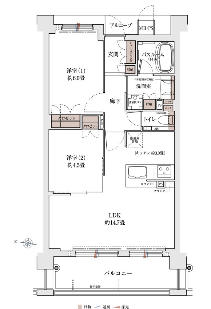
| タイプ |
A2 type |
間取り |
2LDK |
|---|---|---|---|
| 専有面積 |
55.91 ㎡ |
バルコニー面積 |
9.57 ㎡ |
| 所在地 |
兵庫県神戸市灘区篠原南町6丁目9-6(住居表示) |
||
| 交通 |
阪急神戸線「六甲」駅 徒歩12分 |
||
| 備考 |
アルコーブ面積:3.85㎡ |
||