

| タイプ |
E TYPE(MENU PLAN2) |
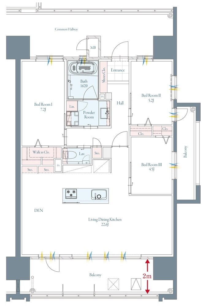
間取り |
3LDK+DEN+WIC |
|---|---|---|---|
| 専有面積 |
87.15 ㎡ |
バルコニー面積 |
22.72 ㎡ |
| 所在地 |
大分県大分市東大道2丁目108番 |
||
| 交通 |
JR久大本線「大分」駅 徒歩6分(約460m) |
||
| 備考 |
MB面積:0.66㎡ |
||