

| タイプ |
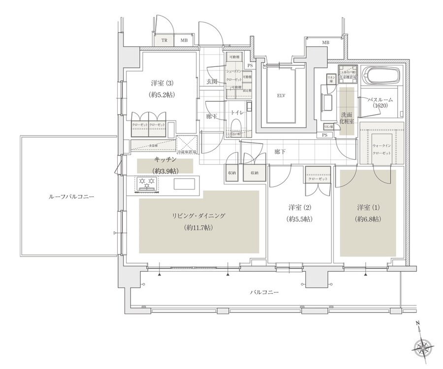
80DSタイプ【プレミアム住戸】 |
間取り |
3LDK+WIC+SIC |
|---|---|---|---|
| 専有面積 |
82.37 ㎡ |
バルコニー面積 |
16.52 ㎡ |
| 所在地 |
東京都文京区春日2丁目107番32,33,41,107,108,109,110(地番) |
||
| 交通 |
東京メトロ丸ノ内線「後楽園」駅 徒歩9分 |
||
| 備考 |
ルーフバルコニー面積:17.17㎡ |
||