
タイプ |
80Aタイプ |
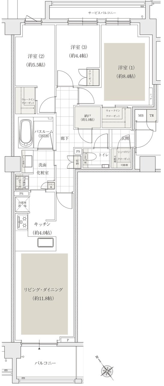
間取り |
3LDK+2WIC+SIC+N |
---|---|---|---|
専有面積 |
82.99 ㎡ |
バルコニー面積 |
- |
所在地 |
東京都文京区春日2丁目107番32,33,41,107,108,109,110(地番) |
||
交通 |
東京メトロ丸ノ内線「後楽園」駅 徒歩9分 |
||
備考 |
バルコニー面積:(2〜4F)6.08㎡、(5F)6.23㎡ |