
タイプ |
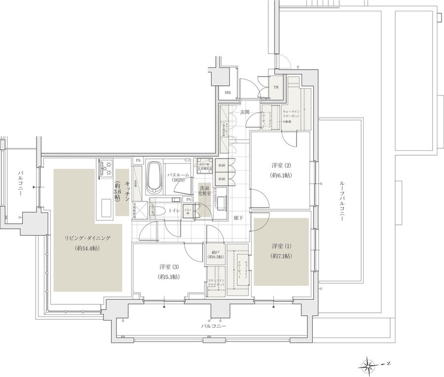
90ASタイプ【プレミアム住戸】 |
間取り |
3LDK+2WIC+STC+N |
---|---|---|---|
専有面積 |
90.92 ㎡ |
バルコニー面積 |
20.16 ㎡ |
所在地 |
東京都文京区春日2丁目107番32,33,41,107,108,109,110(地番) |
||
交通 |
東京メトロ丸ノ内線「後楽園」駅 徒歩9分 |
||
備考 |
ルーフバルコニー面積:14.58㎡ |