

| タイプ |
Gr type |
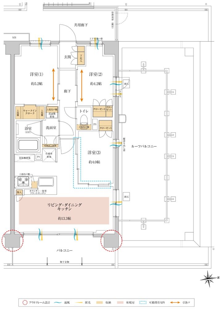
間取り |
3LDK+WIC |
|---|---|---|---|
| 専有面積 |
57.96 ㎡ |
バルコニー面積 |
9.52 ㎡ |
| 所在地 |
埼玉県川口市南鳩ヶ谷5丁目12-6、12-20(地番) |
||
| 交通 |
埼玉高速鉄道「南鳩ヶ谷」駅 徒歩3分 |
||
| 備考 |
ルーフバルコニー面積:21.73㎡ |
||