
タイプ |
A TYPE |
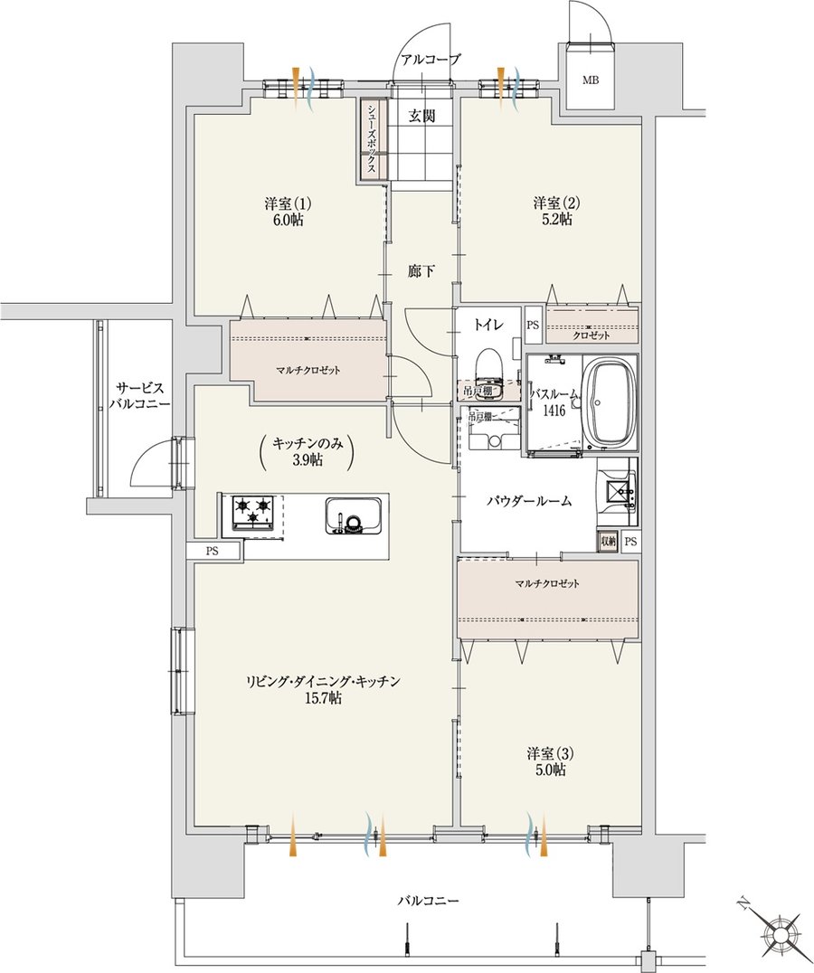
間取り |
3LDK |
---|---|---|---|
専有面積 |
74.85 ㎡ |
バルコニー面積 |
12.33 ㎡ |
所在地 |
新潟県新発田市諏訪町1丁目1073番 |
||
交通 |
JR羽越本線「新発田」駅 徒歩5分 |
||
備考 |
アルコーブ面積/3.08㎡ |