

| タイプ |
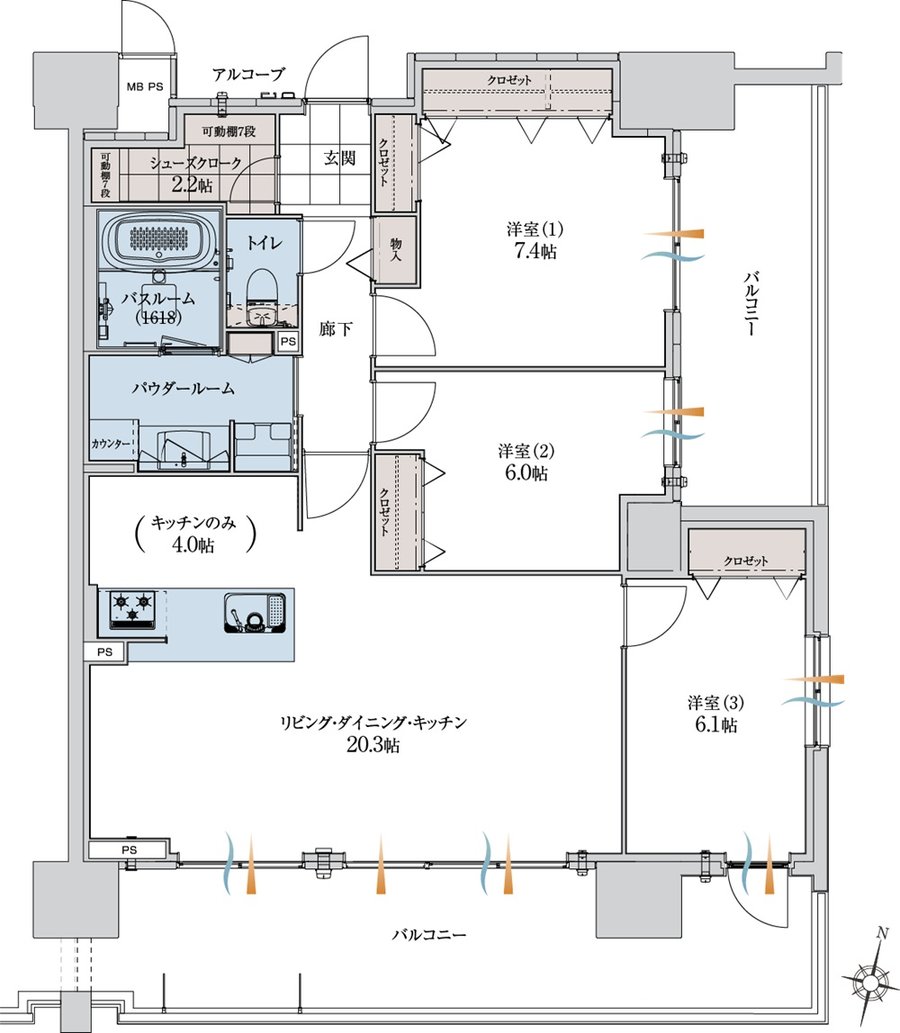
G TYPE |
間取り |
3LDK |
|---|---|---|---|
| 専有面積 |
90.66 ㎡ |
バルコニー面積 |
35.15 ㎡ |
| 所在地 |
静岡県藤枝市駅前1丁目9-1~9-15 |
||
| 交通 |
東海道本線「藤枝」駅 徒歩2分 |
||
| 備考 |
アルコーブ面積/2.04㎡ |
||