

| タイプ |
F TYPE |
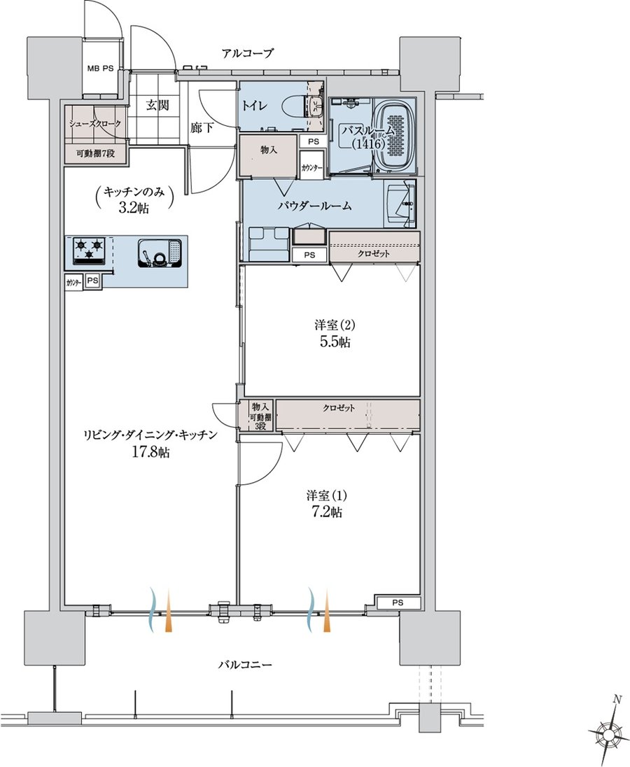
間取り |
2LDK+シューズクローク |
|---|---|---|---|
| 専有面積 |
70.14 ㎡ |
バルコニー面積 |
17.02 ㎡ |
| 所在地 |
静岡県藤枝市駅前1丁目9-1~9-15 |
||
| 交通 |
東海道本線「藤枝」駅 徒歩2分 |
||
| 備考 |
※4F~21Fのバルコニー面積:13.85㎡ |
||