

| タイプ |
B TYPE |
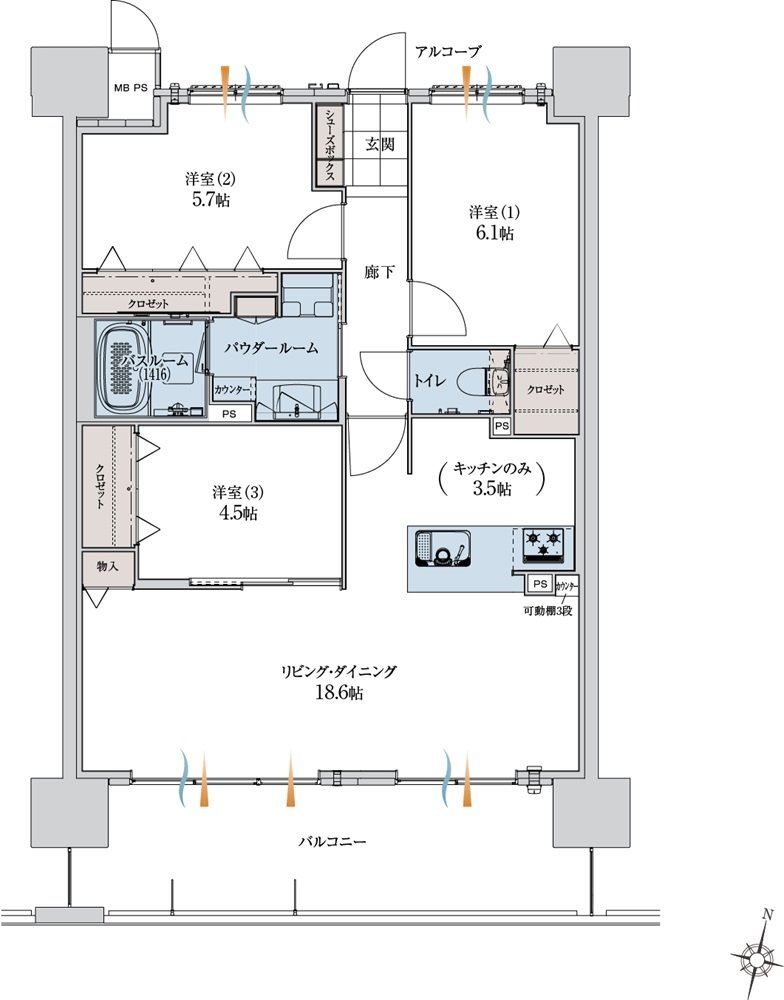
間取り |
3LDK |
|---|---|---|---|
| 専有面積 |
76.68 ㎡ |
バルコニー面積 |
19.12 ㎡ |
| 所在地 |
静岡県藤枝市駅前1丁目9-1~9-15 |
||
| 交通 |
東海道本線「藤枝」駅 徒歩2分 |
||
| 備考 |
アルコーブ面積/4.14㎡ |
||