
タイプ |
N type |
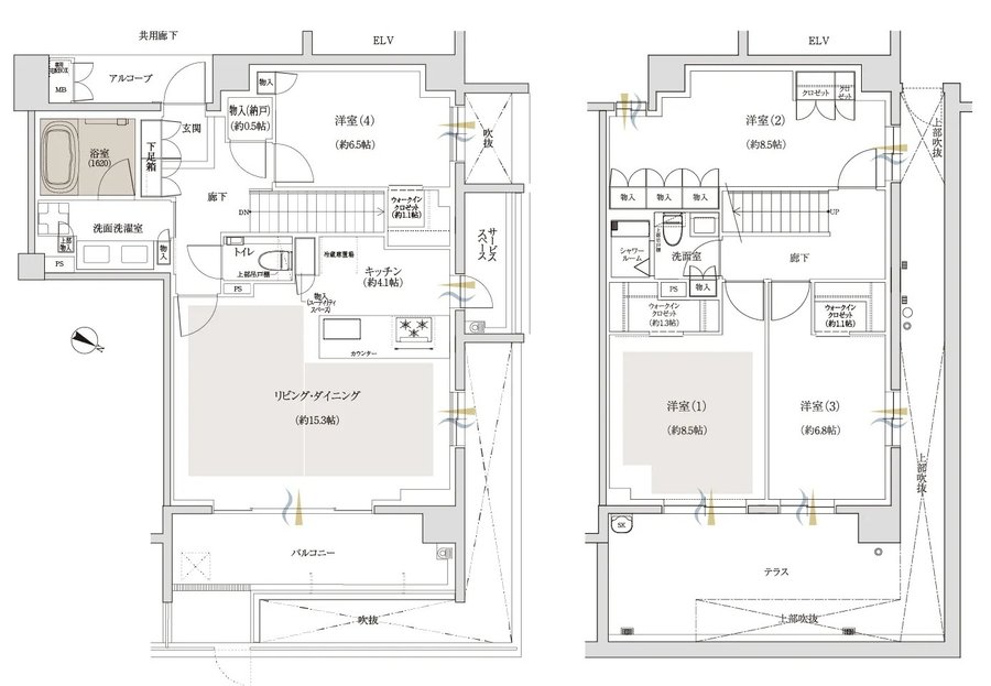
間取り |
3LDK+3WIC+SIC |
---|---|---|---|
専有面積 |
116.34 ㎡ |
バルコニー面積 |
7.75 ㎡ |
所在地 |
東京都世田谷区深沢7丁目40番1 |
||
交通 |
東急田園都市線「桜新町」駅 徒歩12分 |
||
備考 |
テラス面積/19.08㎡ |