

| タイプ |
L1・Lタイプ(East) |
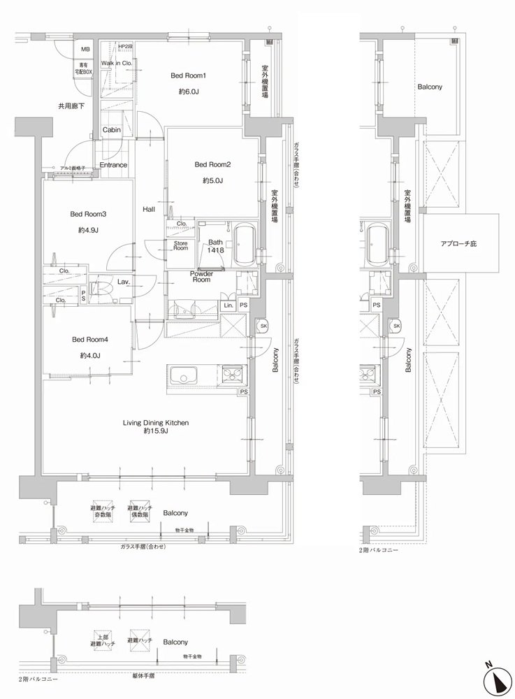
間取り |
4LDK+WIC+C+Store Room |
|---|---|---|---|
| 専有面積 |
80.74 ㎡ |
バルコニー面積 |
- |
| 所在地 |
福岡県糟屋郡新宮町下府地区2街区2画地(保留地)(West-I/West-II) |
||
| 交通 |
西鉄貝塚線「西鉄新宮」駅 徒歩9分(West-I) |
||
| 備考 |
※専有宅配BOX面積:0.30㎡を含む |
||