

| タイプ |
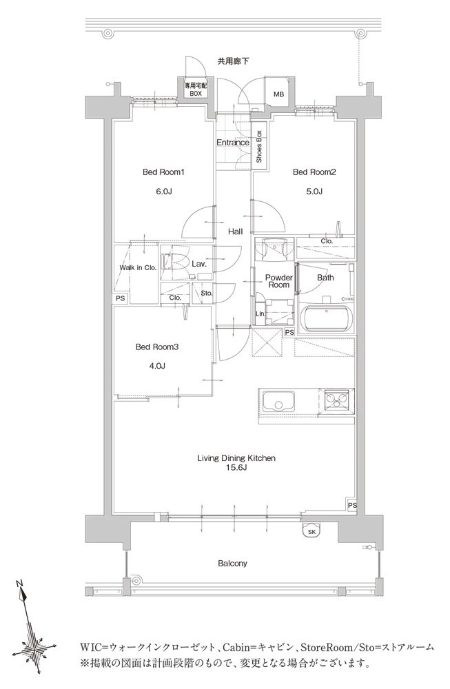
Fタイプ(West-II) |
間取り |
3LDK+WIC+Sto |
|---|---|---|---|
| 専有面積 |
66.99 ㎡ |
バルコニー面積 |
11.84 ㎡ |
| 所在地 |
福岡県糟屋郡新宮町下府地区2街区2画地(保留地)(West-I/West-II) |
||
| 交通 |
西鉄貝塚線「西鉄新宮」駅 徒歩9分(West-I) |
||