

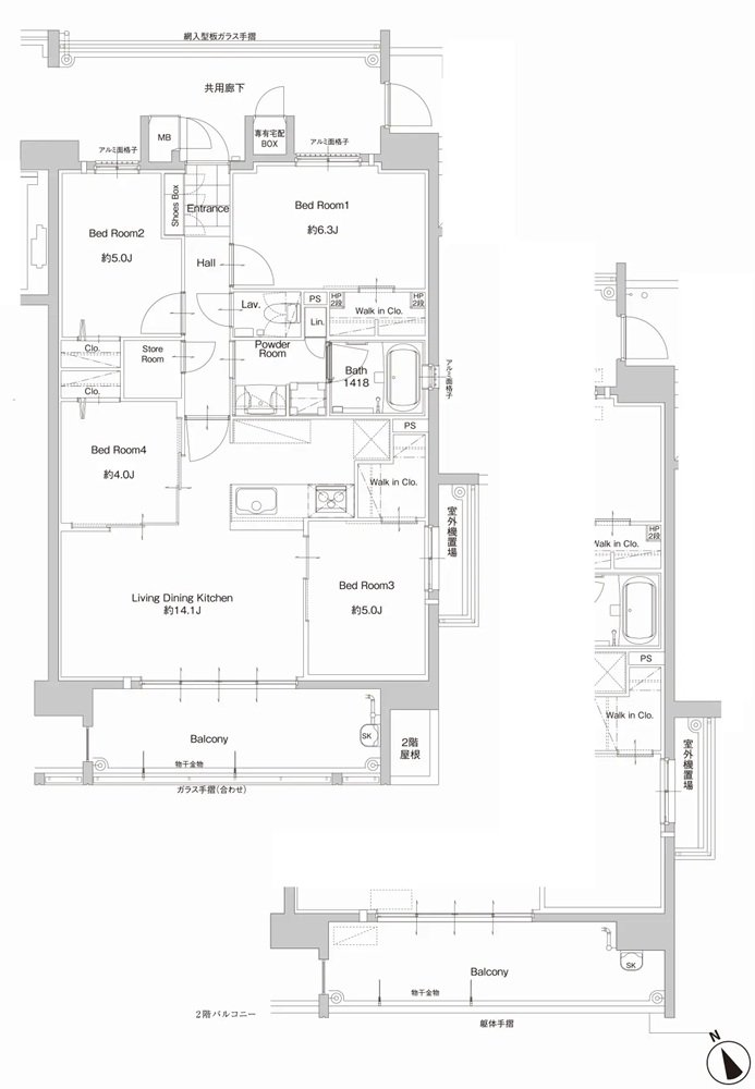
| タイプ |
H1・Hタイプ(West-II) |
間取り |
4LDK+2WIC+Sto |
|---|---|---|---|
| 専有面積 |
77.13 ㎡ |
バルコニー面積 |
- |
| 所在地 |
福岡県糟屋郡新宮町下府地区2街区2画地(保留地)(West-I/West-II) |
||
| 交通 |
西鉄貝塚線「西鉄新宮」駅 徒歩9分(West-I) |
||
| 備考 |
※専有面積に専有宅配BOX0.60㎡を含む |
||