アットホーム 新築マンション

印刷する

このウィンドウを閉じる

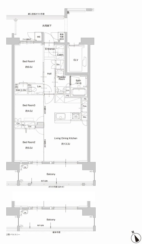
サンパーク新宮EXIA West-I/West-II/East Kタイプ(East)

サンパーク新宮EXIA West-I/West-II/East 間取り Kタイプ(East)
タイプ

Kタイプ(East)

間取り

3LDK+WIC+C+2Sto+Pan

専有面積

64.29 ㎡

バルコニー面積

12.21 ㎡

所在地

福岡県糟屋郡新宮町下府地区2街区2画地(保留地)(West-I/West-II)
福岡県糟屋郡新宮町下府地区1街区1画地の一部 (West-I/West-II)
福岡県糟屋郡新宮町下府地区3街区1画地(保留地)(East)
福岡県糟屋郡新宮町下府地区1街区1画地の一部(保留地)(East)

交通

西鉄貝塚線「西鉄新宮」駅 徒歩9分(West-I)
西鉄貝塚線「西鉄新宮」駅 徒歩10分(West-II)
西鉄貝塚線「西鉄新宮」駅 徒歩11分(East) 他

備考

※専有宅配BOX面積:0.54㎡を含む

  • 可変式間仕切り
  • スロップシンク
  • 南向き

印刷する

このウィンドウを閉じる

アットホーム Copyright(c) At Home Co.,Ltd. このサイトに掲載している情報の無断転載を禁止します。著作権はアットホーム(株)またはその情報提供者に帰属します。