
タイプ |
G1 type |
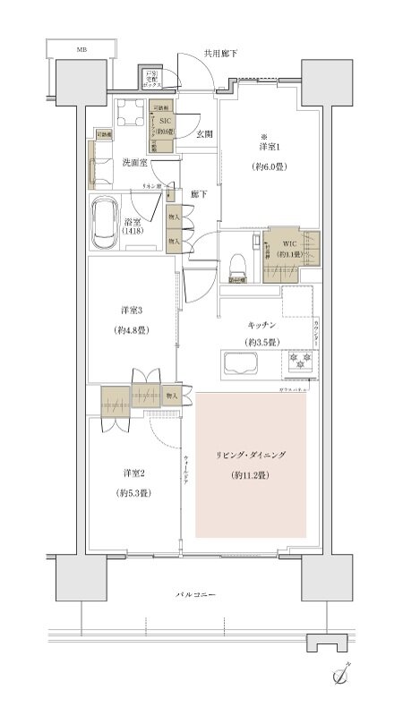
間取り |
3LDK+WIC+SIC |
---|---|---|---|
専有面積 |
70.3 ㎡ |
バルコニー面積 |
12.1 ㎡ |
所在地 |
埼玉県川越市脇田本町13-3他3筆 |
||
交通 |
東武東上線「川越」駅 徒歩2分(西口) |
||
備考 |
※専有面積は戸別宅配ボックス面積0.31㎡含む |