

| タイプ |
Gタイプ |
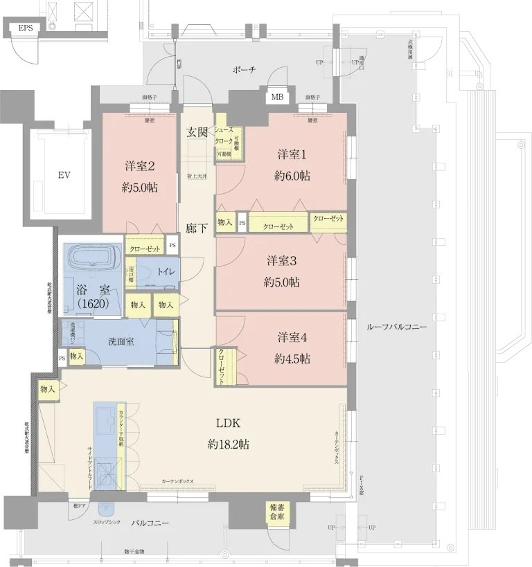
間取り |
4LDK+SC |
|---|---|---|---|
| 専有面積 |
87.68 ㎡ |
バルコニー面積 |
15.87 ㎡ |
| 所在地 |
福岡県福岡市西区北原1丁目98番 |
||
| 交通 |
JR筑肥線「九大学研都市」駅 徒歩4分(約300m) |
||
| 備考 |
ルーフバルコニー面積:31.78㎡ |
||