
タイプ |
Kr type |
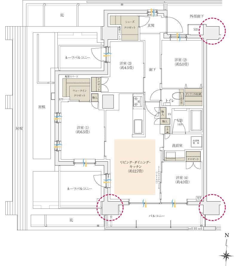
間取り |
4LDK+WIC+SC |
---|---|---|---|
専有面積 |
78.21 ㎡ |
バルコニー面積 |
8.77 ㎡ |
所在地 |
東京都大田区西糀谷3丁目616番2(地番) |
||
交通 |
京急空港線「糀谷」駅 徒歩10分[改札口] |
||
備考 |
ルーフバルコニー面積:11㎡ |