

| タイプ |
Lr TYPE |
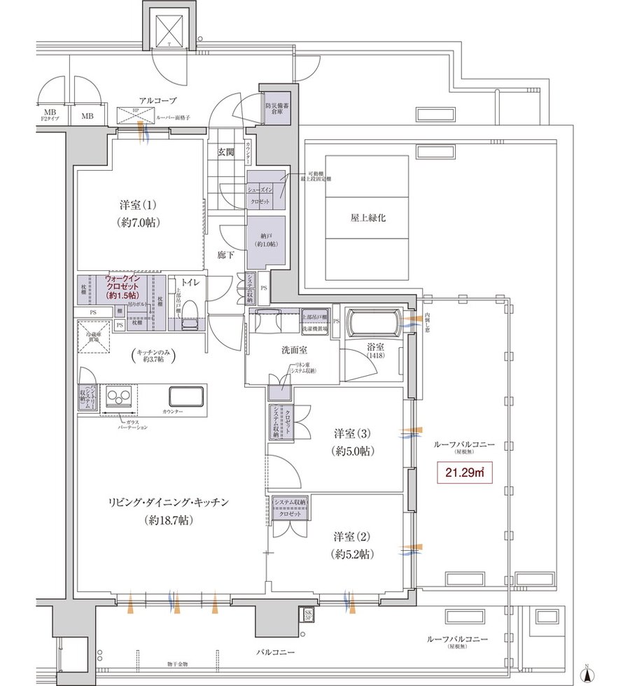
間取り |
3LDK+WIC+SIC+納戸+防災備蓄倉庫 |
|---|---|---|---|
| 専有面積 |
82.91 ㎡ |
バルコニー面積 |
13.88 ㎡ |
| 所在地 |
愛知県名古屋市西区鳥見町1丁目12番2(地番) |
||
| 交通 |
名古屋市鶴舞線「庄内通」駅 徒歩7分 |
||
| 備考 |
ルーフバルコニー面積/21.29㎡ |
||