

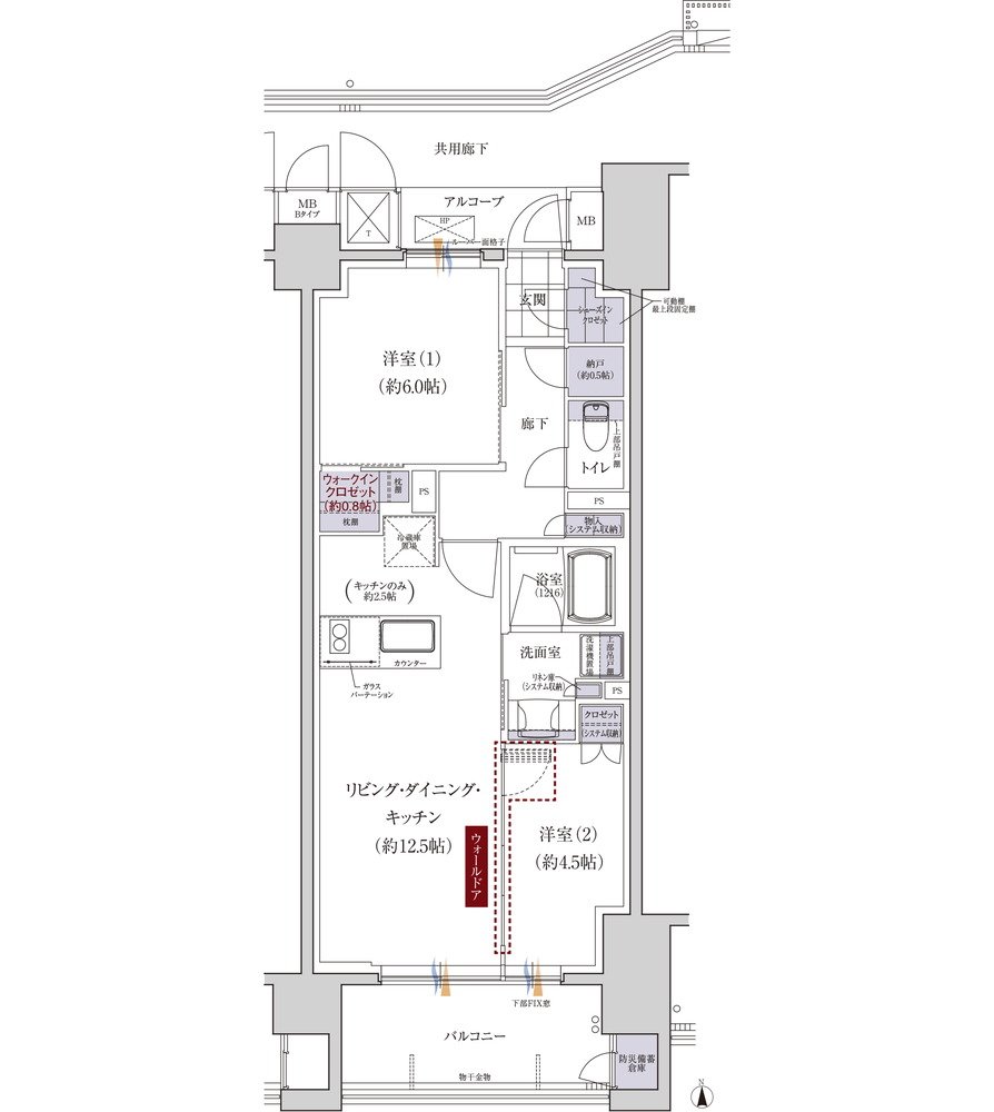
| タイプ |
C TYPE |
間取り |
2LDK+WIC+SIC+N+防災備蓄倉庫 |
|---|---|---|---|
| 専有面積 |
55.78 ㎡ |
バルコニー面積 |
7.65 ㎡ |
| 所在地 |
愛知県名古屋市西区鳥見町1丁目12番2(地番) |
||
| 交通 |
名古屋市鶴舞線「庄内通」駅 徒歩7分 |
||
| 備考 |
アルコーブ面積/2.58㎡ |
||