アットホーム 新築マンション

印刷する

このウィンドウを閉じる

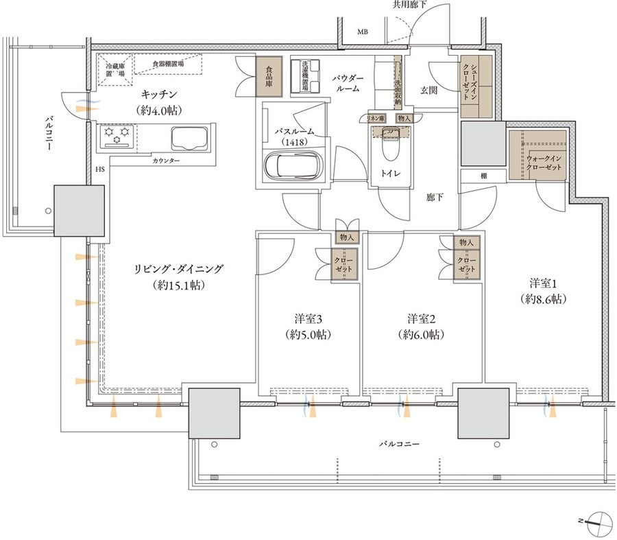
久留米ザ・タワー レジデンシャル G(b)・A(b) TYPE

久留米ザ・タワー レジデンシャル 間取り G(b)・A(b) TYPE
タイプ

G(b)・A(b) TYPE

間取り

3LDK+WIC+SIC

専有面積

86.19 ㎡

バルコニー面積

-

所在地

福岡県久留米市城南町36番1

交通

九州新幹線「久留米」駅 徒歩1分
JR鹿児島本線「久留米」駅 徒歩1分

備考

バルコニー面積:38.27㎡(10・11階)、23.91㎡(12〜34階)
※10〜20階、21〜34階

  • 玄関からリビングが見えない間取り
  • 可変式間仕切り
  • 広いリビング
  • ウォークインクローゼット
  • シューズインクローゼット
  • 出入口が2か所以上あるキッチン
  • 2面バルコニー
  • 北向き

印刷する

このウィンドウを閉じる

アットホーム Copyright(c) At Home Co.,Ltd. このサイトに掲載している情報の無断転載を禁止します。著作権はアットホーム(株)またはその情報提供者に帰属します。