
タイプ |
Eg type |
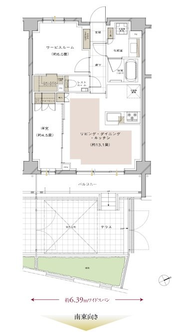
間取り |
1LDK+S+WIC |
---|---|---|---|
専有面積 |
54.53 ㎡ |
バルコニー面積 |
7.89 ㎡ |
所在地 |
東京都世田谷区豪徳寺2丁目1091-4(地名地番) |
||
交通 |
東急世田谷線「世田谷」駅 徒歩5分 |
||
備考 |
テラス面積/17.92m2 |