
タイプ |
D-P2rタイプ |
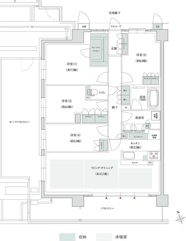
間取り |
4LDK+WIC |
---|---|---|---|
専有面積 |
98.63 ㎡ |
バルコニー面積 |
18.05 ㎡ |
所在地 |
大阪府堺市北区長曽根町545番33(地番) |
||
交通 |
地下鉄御堂筋線「新金岡」駅 徒歩5分(N棟) |
||
備考 |
ルーフバルコニー面積:26.86㎡ |