

| タイプ |
F-H1rタイプ(ノース(N棟)先着順) |
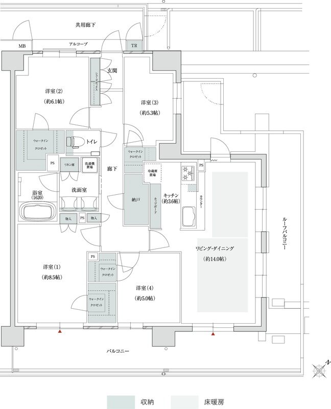
間取り |
4LDK+4WIC+N |
|---|---|---|---|
| 専有面積 |
101.67 ㎡ |
バルコニー面積 |
22.57 ㎡ |
| 価格 |
8469万円 |
||
| 所在地 |
大阪府堺市北区長曽根町545番33(地番) |
||
| 交通 |
地下鉄御堂筋線「新金岡」駅 徒歩5分(N棟) |
||
| 備考 |
ルーフバルコニー面積:20.08㎡ |
||